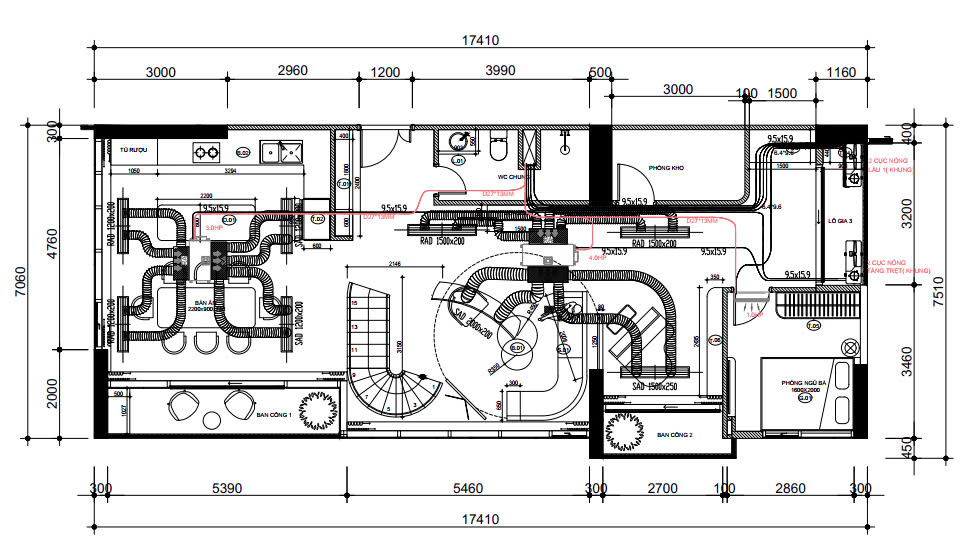
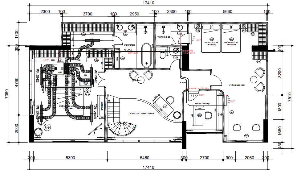
1. Tổng quan công trình
- Căn biệt thự có tổng 6 phòng: 1 phòng bếp, 1 phòng khách, 1 phòng ngủ master, 1 phòng làm việc, 1 phòng ngủ bà, 1 phòng ngủ hai em bé
- Sử dụng điều hòa giấu trần cục bộ kêt hợp Multi Daikin 1 chiều- inverter
- Dùng loại dàn lạnh giấu trần nối ống gió
2. Giải pháp của Điện Lạnh Mọi Nhà
Từ bản vẽ thiết kế, bản vẽ trần, bản vẽ đèn Điện Lạnh Mọi Nhà đã lên phương án giải pháp phù hợp cho chủ nhà:
- Máy lạnh cục bộ Giấu trần nối ống gió áp suất tĩnh trung bình – Inverter tiêu chuẩn – Điều khiển không dây 11.2kW, 1 pha- FBFC100DVM9 / RZFC100DVM + BRC4C66 ( phòng khách, phòng ngủ master)
- Máy lạnh cục bộ Giấu trần nối ống gió áp suất tĩnh trung bình – Inverter tiêu chuẩn – Điều khiển không dây 7.1kW, 1 pha- FBFC71DVM9 / RZFC71DVM + BRC4C66 ( phòng ăn)
- Dàn nóng Multi 4HP 5MKM100RVMV
- Dàn lạnh treo tường Multi 2.5kW kèm điều khiển không dây CTKM25RVMV ( phòng ngủ bà, phòng làm việc)
- Dàn lạnh treo tường Multi 3.6kW kèm điều khiển không dây CTKM35RVMV ( phòng ngủ hai bé)

3. Chi phí cho hệ thống điều hòa cục bộ kết hợp điều hòa Multi Daikin
Tổng chi phí hệ thống điều hòa gồm thiết bị và vật tư nhân công lắp đặt

Chi phí có thể thay đổi tùy vào công năng và không gian lắp đặt, loại dàn lạnh sử dụng, độ dài ống đồng kết nối, tiêu chuẩn vật tư. Vì vậy cần tư vấn chi tiết, hệ thống điều hòa phù hợp với không gian hãy liên hệ trực tiếp qua Hotline 037 500 3669. Điện Lạnh Mọi Nhà khảo sát, tư vấn, thiết kế, dự toán miễn phí.
4. Hình ảnh thi công tại công trình

CÔNG TY TNHH THƯƠNG MẠI VÀ DỊCH VỤ KỸ THUẬT ĐIỆN LẠNH H.T
Địa chỉ: 67/20/44A Nguyễn Thị Tú, Bình Hưng Hòa B, Q. Bình Tân, TP.HCM
Zalo: 0375 003 669
Hotline: 0375 003 669
Mail: dienlanhmoinha811@gmail.com
Website: dienlanhmoinha.com
ĐIỆN LẠNH MỌI NHÀ– ĐƠN VỊ CHUYÊN TƯ VẤN THIẾT KẾ, KHẢO SÁT – LẮP ĐẶT ĐIỀU HÒA CHUYÊN NGHIỆP NHẤT TẠI TP HCM, VÀ CÁC TỈNH LÂN CẬN


