Điện Lạnh Mọi Nhà Thi công lắp đặt hệ thống điều hòa không khí cục bộ kết hợp Multi tại quận 2
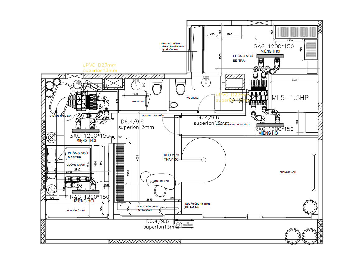
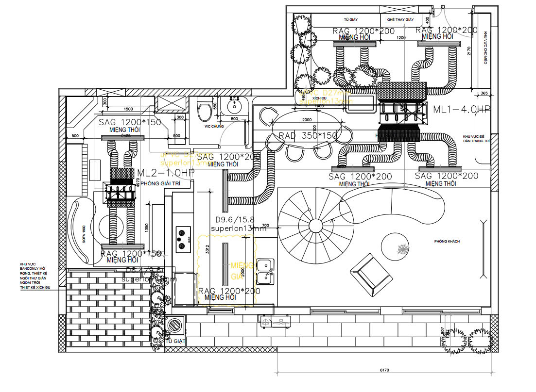
Với không gian 1 trệt 1 lầu gồm các công năng: Phòng khách, phòng ngủ bé trai, phòng giải trí, Phòng ngủ Master. Điện Lạnh Mọi Nhà đã tư vấn cho khách hàng hệ thống điều hòa cục bộ giấu trần nối ống gió kết hợp với hệ thống Multi LG
- Phòng khách + bếp: 4HP ( 44m2)
- Phòng ngủ con trai: 1.5HP ( 19m2)
- Phòng giải trí: 1.0HP( 15m2)
- Phòng ngủ master: 1.5HP( 19m2)

Hình ảnh thục tế thi công

Thi công lắp đặt hệ thống điều hòa không khí cho nhà phố, biệt thự
Quý khách hàng cần đơn vị thi công lắp đặt chuyên nghiệp, tận tâm hãy liên hệ ngay với chúng tôi để được tư vấn
CÔNG TY TNHH THƯƠNG MẠI VÀ DỊCH VỤ KỸ THUẬT ĐIỆN LẠNH H.T
Địa chỉ: 67/20/44A Nguyễn Thị Tú, Bình Hưng Hòa B, Q. Bình Tân, TP.HCM
Zalo: 0375 003 669
Hotline: 0375 003 669
Mail: dienlanhmoinha811@gmail.com
Website: dienlanhmoinha.com
ĐIỆN LẠNH MỌI NHÀ– ĐƠN VỊ CHUYÊN TƯ VẤN THIẾT KẾ, KHẢO SÁT – LẮP ĐẶT ĐIỀU HÒA CHUYÊN NGHIỆP NHẤT TẠI TP HCM, VÀ CÁC TỈNH LÂN CẬN


