1. Tổng quan công trình
- Căn biệt thự có tổng 6 phòng: 1 phòng khách, 1 phòng ngủ master, 1 phòng giải trí, 1 phòng sinh hoạt chung, 1 phòng ngủ con gái, 1 phòng ngủ bà
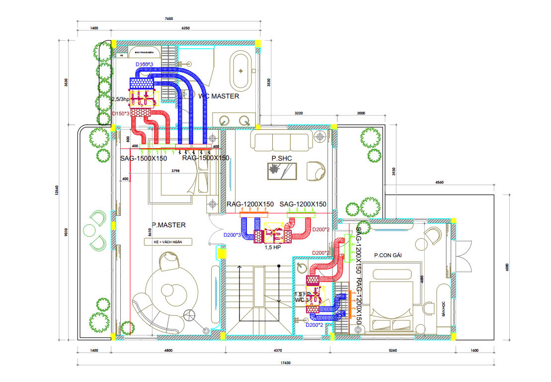
- Sử dụng điều hòa trung tâm VRV Daikin 1 chiều, inverter
- Dùng loại dàn lạnh giấu trần nối ống gió
2. Giải pháp của Điện Lạnh Mọi Nhà
Từ bản vẽ thiết kế, bản vẽ trần\, bản vẽ đèn Điện Lạnh Mọi Nhà đã lên phương án giải pháp phù hợp cho chủ nhà:
- Sử dụng dàn nóng trung tâm VRV A Daikin RXQ12AYM – 12HP
- Dàn lạnh giấu trần nối ống gió loại áp suất trung bình+ bơm nước ngưng FXSQ100PAVE9 – 4HP cho phòng khách
- Dàn lạnh giấu trần nối ống gió loại áp suất trung bình+ bơm nước ngưng FXSQ63PAVE9 – 2.5HP cho phòng ngủ master+ phòng giải trí lầu 2
- Dàn lạnh giấu trần nối ống gió loại áp suất trung bình+ bơm nước ngưng FXSQ32PAVE9 – 1.5HP cho phòng sinh hoạt chung + phòng ngủ con gái
- Dàn lạnh giấu trần nối ống gió loại áp suất trung bình+ bơm nước ngưng FXSQ25PAVE9 – 1.0HP cho phòng ngủ bà


3. Chi phí cho hệ thống điều hòa trung tâm VRV A Daikin 12HP
Tổng chi phí hệ thống điều hòa gồm thiết bị và vật tư nhân công lắp đặt

Chi phí có thể thay đổi tùy vào công năng và không gian lắp đặt, loại dàn lạnh sử dụng, độ dài ống đồng kết nối, tiêu chuẩn vật tư. Vì vậy cần tư vấn chi tiết, hệ thống điều hòa phù hợp với không gian hãy liên hệ trực tiếp qua Hotline 037 500 3669. Điện Lạnh Mọi Nhà khảo sát, tư vấn, thiết kế, dự toán miễn phí.
4. Hình ảnh thi công tại công trình

CÔNG TY TNHH THƯƠNG MẠI VÀ DỊCH VỤ KỸ THUẬT ĐIỆN LẠNH H.T
Địa chỉ: 67/20/44A Nguyễn Thị Tú, Bình Hưng Hòa B, Q. Bình Tân, TP.HCM
Zalo: 0375 003 669
Hotline: 0375 003 669
Mail: dienlanhmoinha811@gmail.com
Website: dienlanhmoinha.com
ĐIỆN LẠNH MỌI NHÀ– ĐƠN VỊ CHUYÊN TƯ VẤN THIẾT KẾ, KHẢO SÁT – LẮP ĐẶT ĐIỀU HÒA CHUYÊN NGHIỆP NHẤT TẠI TP HCM, VÀ CÁC TỈNH LÂN CẬN


